Trosoban stan drugi kat 68.29m2 u novogradnji, Zagreb - Trešnjevka.
Suvremeni stambeni kompleks koji spaja kvalitetu, funkcionalnost i urbani stil života. Svi stanovi zadovoljavaju najviše standarde energetske učinkovitosti (energetski razred A+), a pažljivo planirani tlocrt i suvremena oprema osiguravaju udobnost i funkcionalnost svakodnevnog života.
Otkrijte svoj novi dom u projektu LATERRA – spoj tradicije, sigurnosti i suvremenog života u Zagrebu!
Trosoban
Projekt sadrži dvosobne, trosobne, četverosobne te peterosobne stanove i apartmane.
Površina 68.29m2
Stanovi i apartmani projekta površine su od 47 m2 do 159m2 - prilagođeni urbanim navikama.
Na upit
Za sve detalje oko cijene, kontaktirajte nas na info@laterra.hr ili pozivom na +385 95 114 1991.
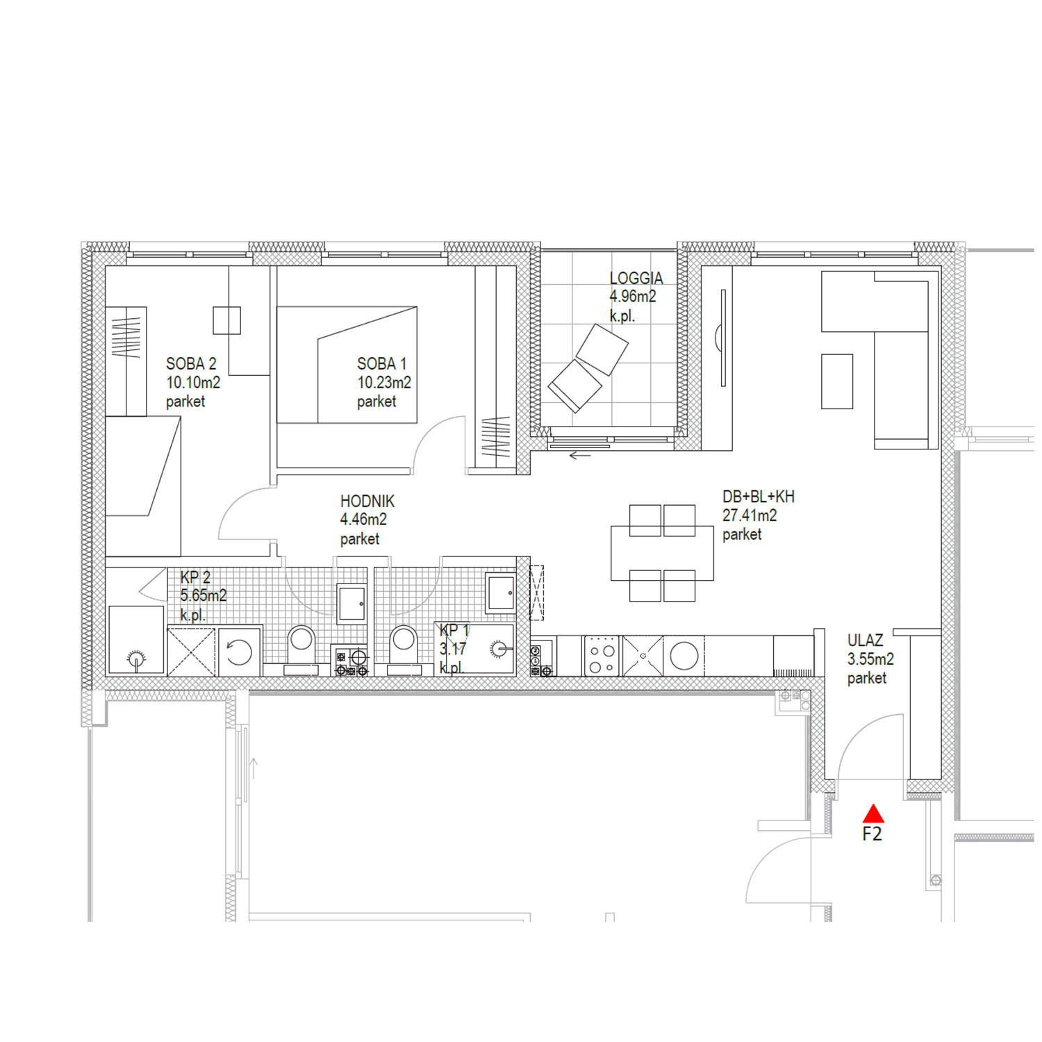
Prikaz površina
Trosoban stan drugi kat F2
| stan / prostorija | netto površina (m²) | netto obračunata površina (m²) |
|---|---|---|
| ulaz | 3.55 | 3.55 |
| hodnik | 4.46 | 4.46 |
| dnev.boravak+blag.+kuhinja | 27.41 | 27.41 |
| soba 1 | 10.23 | 10.23 |
| soba 2 | 10.10 | 10.10 |
| kupaonica 1 | 3.17 | 3.17 |
| kupaonica 2 | 5.65 | 5.65 |
| UKUPNO zatvoreni prostor | 64.57 | 64.57 |
| loggia | 4.96 | 3.72 |
| STAN UKUPNO | 69.53 | 68.29 |
Molimo pošaljite upit kako biste saznali više informacija
Javite nam se
Zainteresirani?
Rado bismo s vama podijelili više informacija, stoga Vas molimo da ispunite ovaj obrazac i naš predani tim će se uskoro javiti ili direktno kontaktirajte našeg agenta.


