Četverosoban apartman drugi kat 91.83m2 u novogradnji, Zagreb - Trešnjevka.
Suvremeni stambeni kompleks koji spaja kvalitetu, funkcionalnost i urbani stil života. Svi stanovi zadovoljavaju najviše standarde energetske učinkovitosti (energetski razred A+), a pažljivo planirani tlocrt i suvremena oprema osiguravaju udobnost i funkcionalnost svakodnevnog života.
Otkrijte svoj novi dom u projektu LATERRA – spoj tradicije, sigurnosti i suvremenog života u Zagrebu!
Četverosoban
Projekt sadrži dvosobne, trosobne, četverosobne te peterosobne stanove i apartmane.
Površina 91.83m2
Stanovi i apartmani projekta površine su od 47 m2 do 159m2 - prilagođeni urbanim navikama.
Na upit
Za sve detalje oko cijene, kontaktirajte nas na info@laterra.hr ili pozivom na +385 95 114 1991.
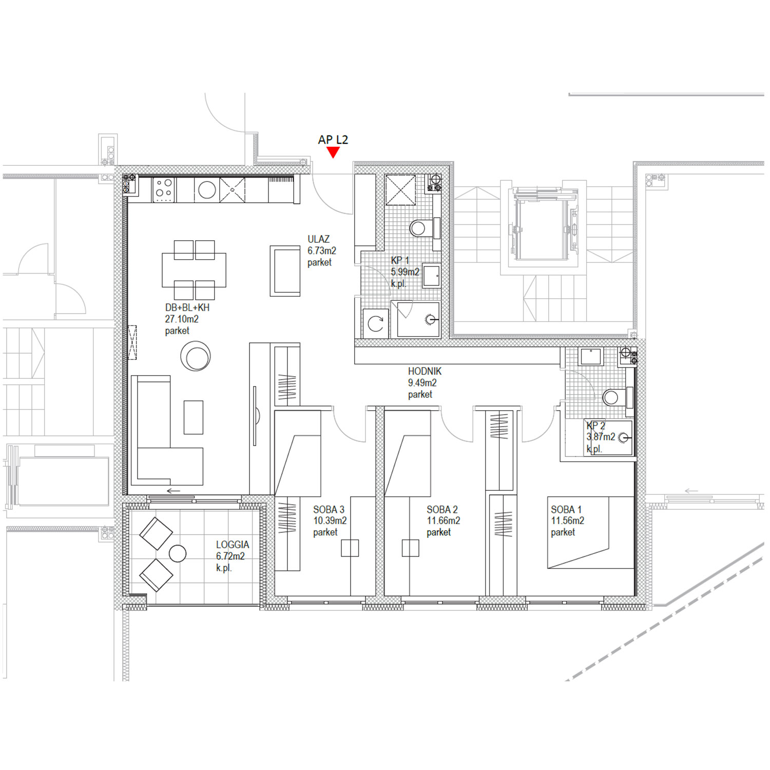
Prikaz površina
Četverosoban apartman drugi kat APL2
| apartman / prostorija | netto površina (m²) | netto obračunata površina (m²) |
|---|---|---|
| ulaz | 6.73 | 6.73 |
| hodnik | 9.49 | 9.49 |
| dnev.boravak+blag.+kuhinja | 27.10 | 27.10 |
| soba 1 | 11.56 | 11.56 |
| soba 2 | 11.66 | 11.66 |
| soba 3 | 10.39 | 10.39 |
| kupaonica 1 | 5.99 | 5.99 |
| kupaonica 2 | 3.87 | 3.87 |
| UKUPNO zatvoreni prostor | 86.79 | 86.79 |
| loggia | 6.72 | 5.04 |
| APARTMAN UKUPNO | 93.51 | 91.83 |
Molimo pošaljite upit kako biste saznali više informacija
Javite nam se
Zainteresirani?
Rado bismo s vama podijelili više informacija, stoga Vas molimo da ispunite ovaj obrazac i naš predani tim će se uskoro javiti ili direktno kontaktirajte našeg agenta.


